Work
Thomtables
About
Contact
General conditions
Work
Thomtables
About
Contact
General conditions
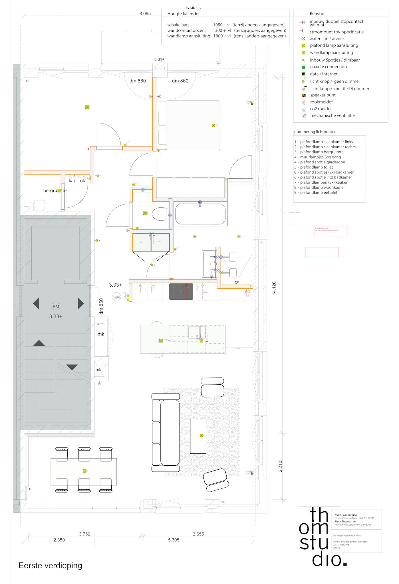
Steigereiland 2 / private residence
complete project - a two bedroom light appartement on the first floor
↑
.