Work
Thomtables
About
Contact
General conditions
Work
Thomtables
About
Contact
General conditions
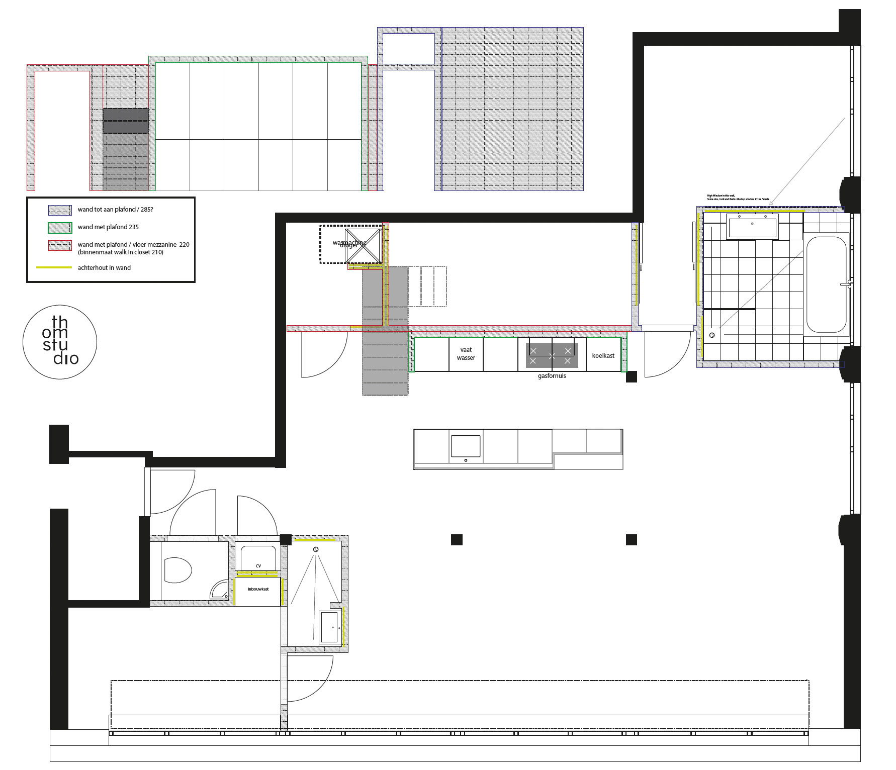
Amsterdam / private residence
Complete project. Loft conversion in the historic heart of Amsterdam
↑
Back to Top